11.8
万元/月
单价 115
元/m²/月
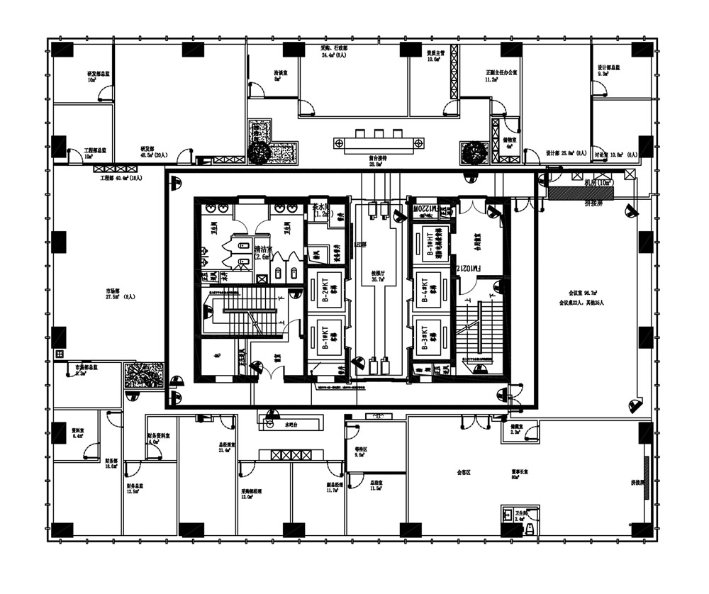
1030m²
建筑面积
50-100人
可容纳工位数
豪装
装修程度
柏经理
专属服务顾问
免费咨询:
0898-6866 0690
周边户型
看过该房源的人还看了

琼公网安备 46010802000985号